
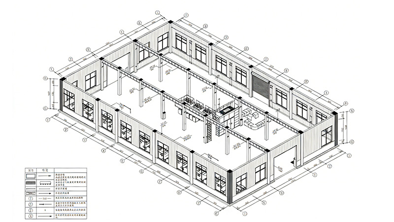
一套高質量的深化施工圖,是保障工程品質、控制項目風險、提升建設效率的核心技術文件,直接決定著廠房最終呈現的功能性、安全性與整體完成度。那么,我們常說的廠房裝飾施工圖深化設計具體是指什么?
“裝飾施工圖深化設計”是一個在建筑裝飾工程中非常核心且專業的概念。簡單來說,廠房裝飾施工圖深化設計,就是將初步的設計方案(效果圖、平面布置圖等)轉化、細化、優化為一套能直接用于現場施工、材料采購和工程預算的、高度精確、詳盡無歧義的圖紙與技術文件的過程。

當然,可以把它理解為 “設計的翻譯和施工的指令手冊”。它與初步方案設計的最大區別就好比是初步方案是回答“做什么”和“做成什么樣”(風格、功能、效果)。深化設計是回答“的具體怎么做”、“用什么做”以及“做多少”。
施工設計深化指的便是“施工圖紙深化”。它的核心目標是實現設計意圖,確保最終建成效果與設計初衷一致。保障施工可行性,解決原方案中可能存在的不合理、沖突或無法施工的問題。通過精確的材料標注、工藝說明和工程量統計,為精準報價和施工安排提供依據。此外必須確保設計符合國家及地方的消防、結構、環保等各項強制規范,并能為報建、報驗提供合格圖紙。
深化設計具體包含哪些內容?主要包括以下幾大塊:

上述涉及到幾大板塊均是實現廠房裝飾施工圖深化設計初步設計和實際施工的橋梁,是確保項目成功實施的重要組成部分。而最終交付成果呈現的便是一套完整、可用于招標和施工的 “施工圖藍圖”? 。通常包括:
簡而言之,廠房裝飾施工圖深化設計是連接創意設計與實體建造的“橋梁”和“法律文件”。它決定了工程能否順利、高效、高質地完成,是避免施工混亂、成本超支和安全隱患的關鍵環節。
廠房裝修需要進行招標和消防報建嗎?
工業廠房裝修地面地坪的類型及其特點是
2025年食品廠裝修地坪漆多少錢一平方?
舊廠房改造比新廠房裝修會多出哪些費用
成都廠房裝修改造設計前風水如何布局
中小茶廠房裝修預算有限?抓住這五個裝